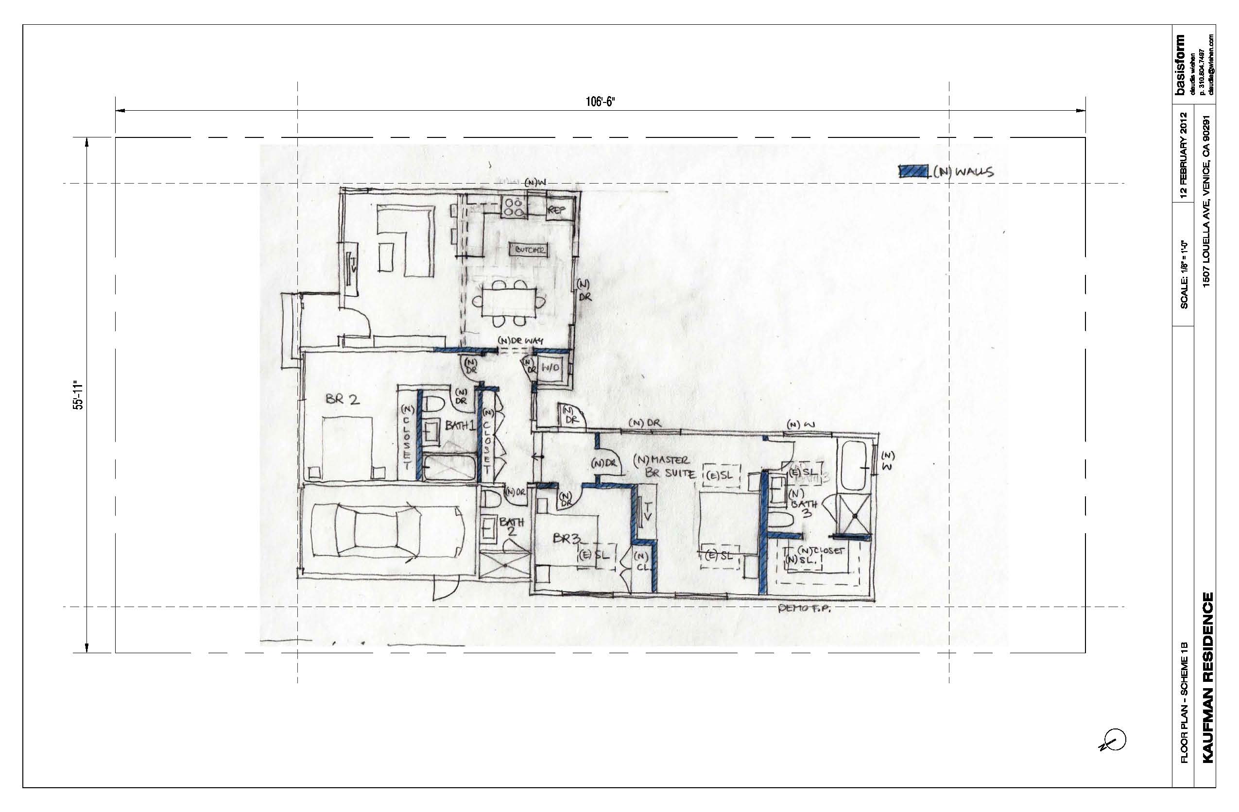
Getting ready to look at some opportunities to improve the house. My good friend and interior architect Claudia is helping me. Here are her initial sketches to get the juices flowing:
Scheme 1
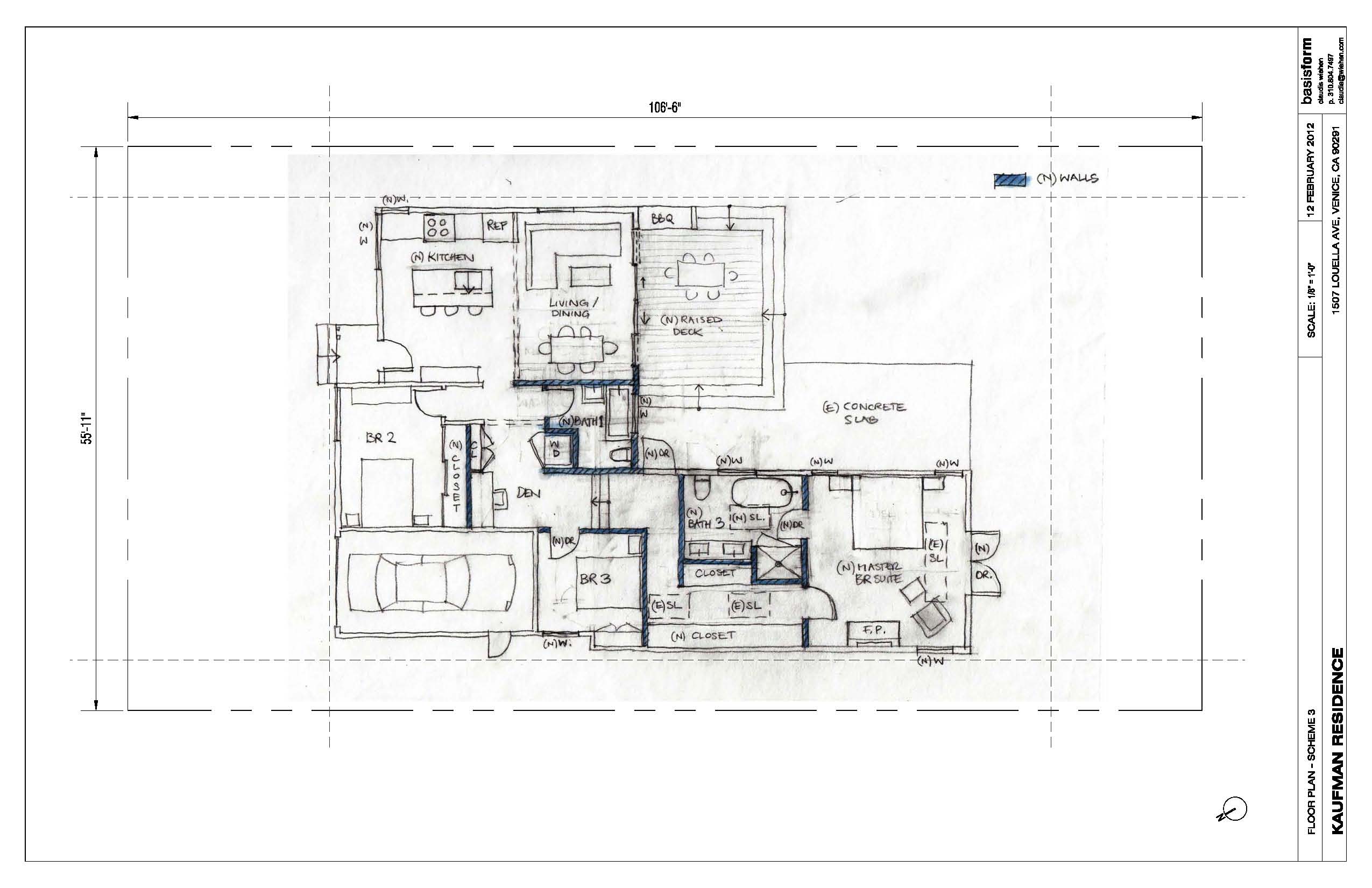
Getting ready to look at some opportunities to improve the house. My good friend and interior architect Claudia is helping me. Here are her initial sketches to get the juices flowing: